Simon Waters
Architect
Residential | Commercial | New Build | Extensions
This site gives a glimpse of what we do in a range of building types. Rather than glossy images, it is intended to explain the process of how an architect really works.
We offer decades of experience in how to avoid the pitfalls of building. Known for staying on budget, Simon works directly with you throughout the project.
For new buildings he will spend time with you to truly understand what you want to achieve before any drawings commence.
On the other hand, if your project is an extension it can be very helpful at the outest to discuss the feasibility to ensure you go down the right path.
Contact Simon to discuss your brief and ask for a fixed fee quote.
Just complete! New 6 bedroom country house at Yea with high tech smart glazing. A 2m diameter steel brain sculpture punctuates the idylic view.
Projects of Interest
Corio Distillery
INDUSTRIAL HISTORY
This grand old dame had slowly drifted into obscurity, once the largest distillery in the southern hemisphere. The huge copper stills remain but gave way to a salt works in the 1980's. In recent years the main buildings, of grade A historic importance, have been standing empty, waiting for someone, anyone to come up with a new use to revive such a fabulous asset. We are excited to be working on a grand plan of revival which will be announced shortly. A veritable hornet's nest of regulations and overlays to navigate but there is every chance that our scheme will save this amazing property and generate local employment with a bit of good will from the many stakeholders involved. The main historic building has a staggering 8,000 sqm of floor space, spread over 4 levels, dating from 1927.





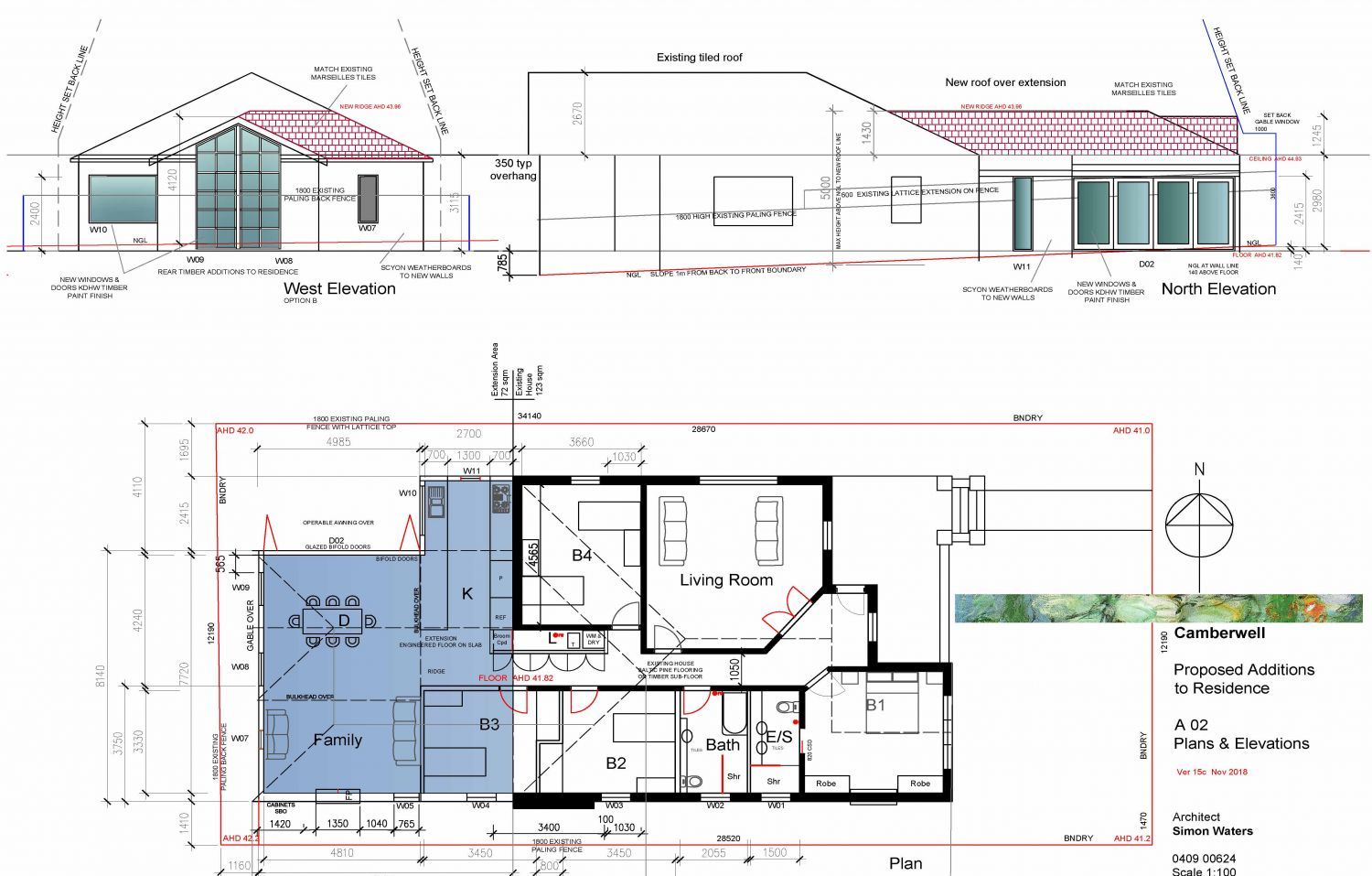
Young Family
CAMBERWELL ADDITIONS RECENTLY COMPLETED
GROWING PAINS
About to start construction, this delightful brick Californian bungalow is being extended to cater for a new arrival.





At the Beach
QUEENSCLIFF
Proposed major renovation to a beach house at Queenscliff with amazing ocean views. Adjoining houses were modeled in 3D enabling VR presentation to the neighbors. Combining the solidity of rammed earth with the lightness of weatherboard.
South view of proposed house with its flanking neighbors. The 3D model enabled extensive virtual reality studies, including sharing previews of how it looks from next door.
A good example of how to get along with your neigbors, rather than the all too common alternative.
The rear elevation boasts unsurpassed views of the ocean with balconies at both levels and even an elevated edge pool.
A glass faced lift provides full disabled access to all three levels, the view unfolding over the dunes as you rise to the top.
The house has very special windows, made in Switzerland, considered among the world's finest.















New Dual Occupancy
NTH BALWYN - THE VISION REALIZED - ON BUDGET





Two luxury units in North Balwyn in honed bluestone. Construction now complete and about to be occupied. A tour de force in stone and Iron Bark timber. All thanks to the team, Icecorp and their wonderful subbies and of course our brilliant clients. We enjoyed working with owners Mark & Alia all the way from concept design, through permits, tendering and supervision to completion. This ensured competitive quotes from builders.
Bluestone Rise
Architect: Simon Waters
Builder: Icecorp
Engineer: Andrew Daly
Landscape: Lisa Stafford
Land Surveyor: Peter Rickard
Building Surveyor: MBS

























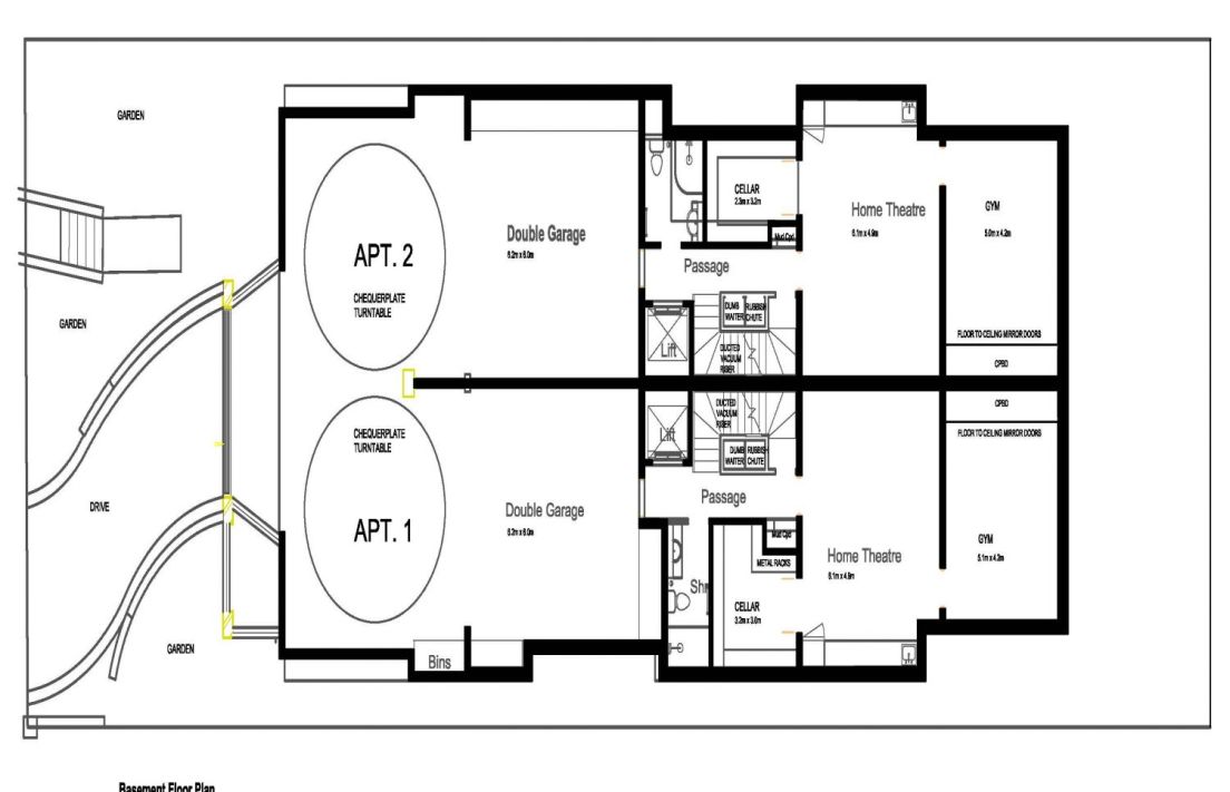
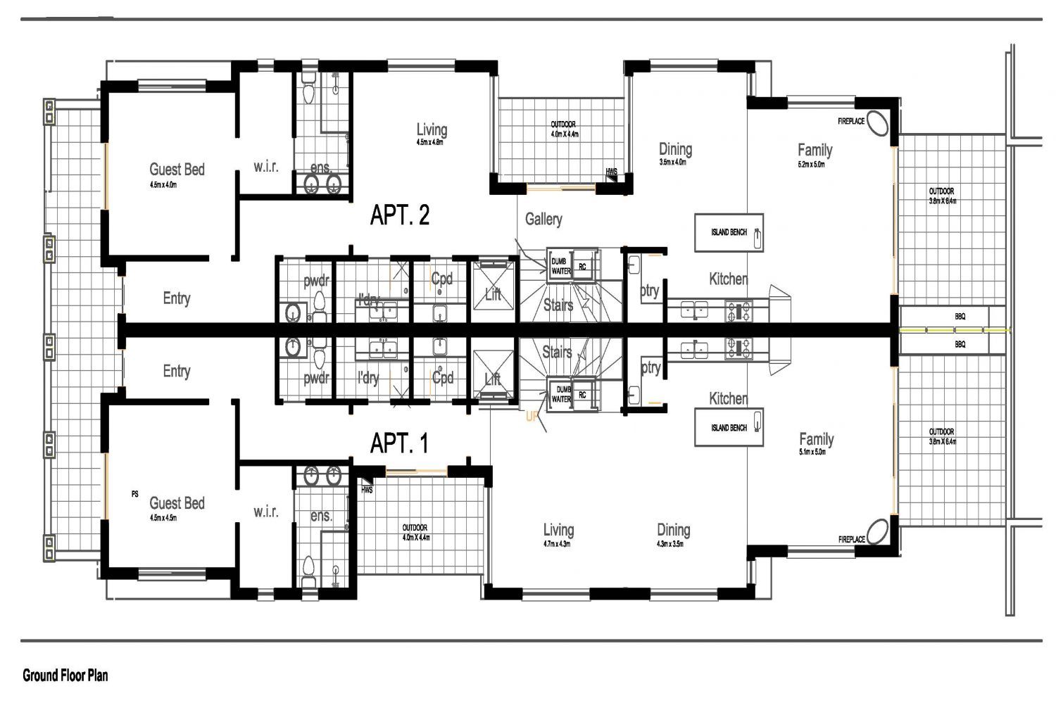
Retro Dual Occupancy
21 COLLINGS ST, CAMBERWELL - FOR CONSTRUCTION 2021
Recalling the Californian Bungalow style typical of the area, this project was recently approved after VCAT appeal. Packing quite a lot on a regular house site. Each townhouse has 3 levels complete with home theaters, gyms, lifts & dumb waiter, all the trimmings.
The cost? $2.9m, quite reasonable at $3,400 / sqm, complete. Not without some controversy at the time, the design went through several iterations, the final version shown below in relation to its neighbors. Whilst many people oppose the side by side dual occ concept, we say it is a relatively harmless way of increasing density in our suburbs because the building bulk is typically in line with its neighbors, preserving reasonable open spaces, front & back. Both dwellings have equal frontage, rather than one being relegated to the back of the site.

























Hawthorn
38 Kinkora Rd. $1m renovation to a lovely 1930's house. Heritage protected, the house was completely re-planned with a central hallway and large rear living space, repleat with floating fire place. A new lower level was added for cars, cellar and storage.





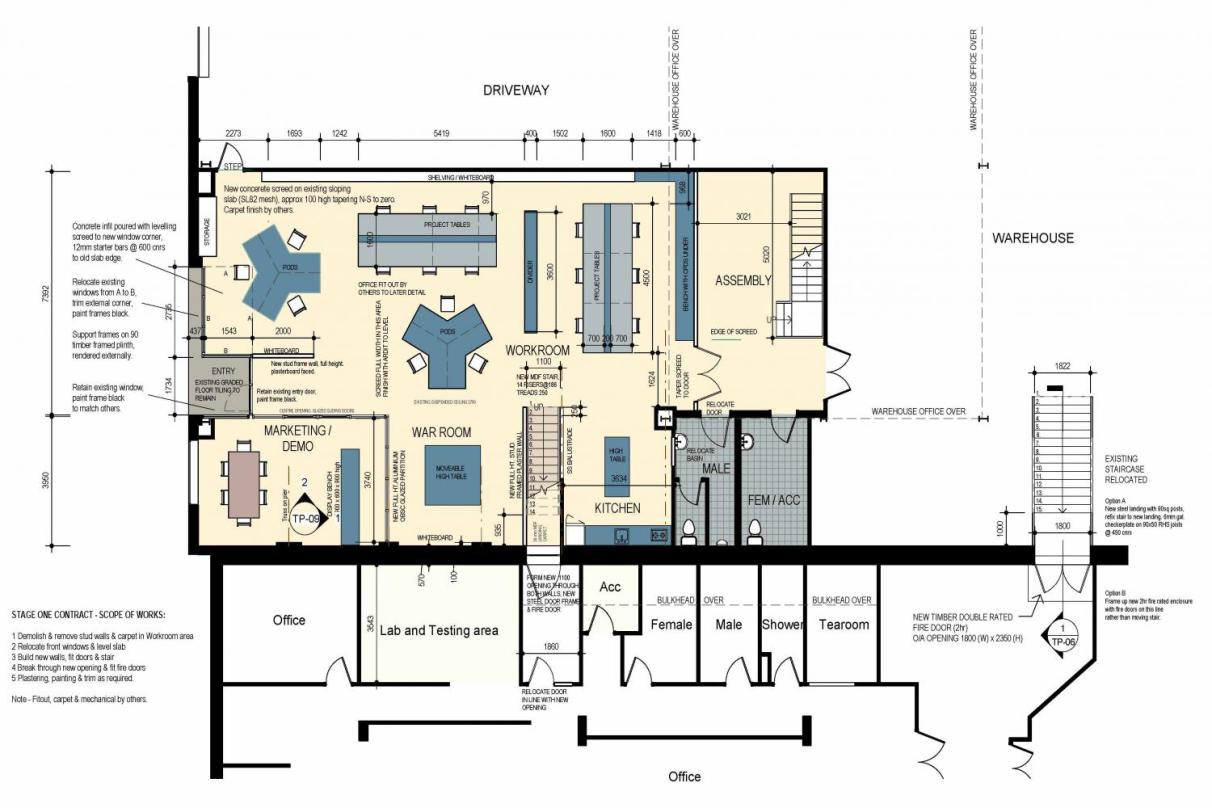
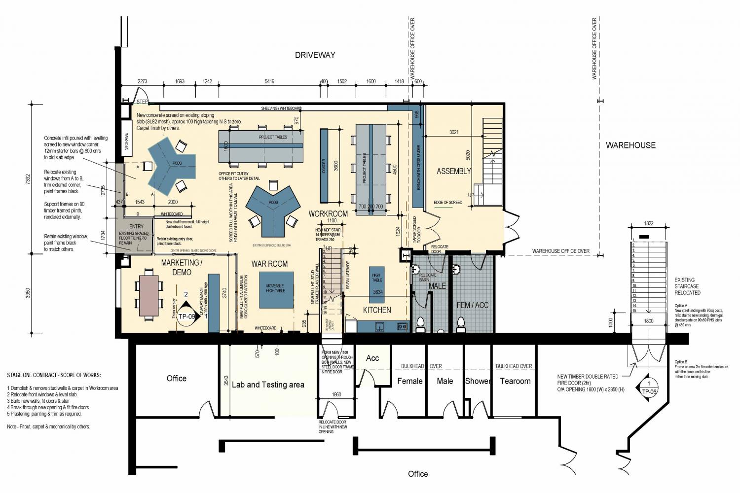
The Science of Floor Levelling
Converting an old warehouse in Hawthorn to a high tech IT studio.
Our expert contractors pouring levelling compound in the final stages of upgrading an old sloping slab
to a reasonable standard for the new research office.
Penthouse Apartments
Our Cad perspective of the amazing view of the city from the spa of this penthouse apartment, before construction (not a photo). It accurately calculates sun penetration, combining 3D cad with photography. Talk to Simon about your project and how to visualize it. 0409 006240.




















0409 006240
Penthouse Refit










Two story addition and roof space occupation to match the Cal Bung style.





On a recent visit to the Mallee this restoration project came into prospect. One of many ruined farm buildings dating back to the 1840's near Patchewollock.




